Projekt:
Kindertagesstätte „Pusteblume“
Ort:
Stuttgart Feuerbach
Ausführung:
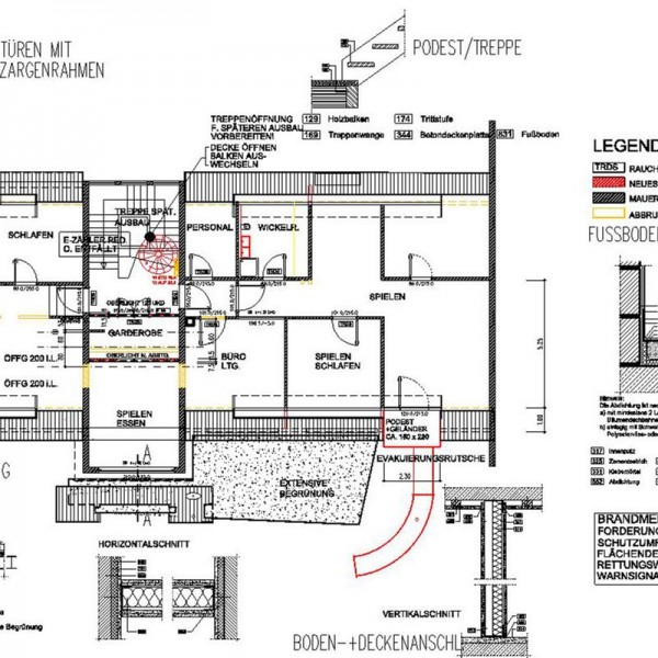
Die evangelisch Kirchengemeinde hat Ihr Gemeindehaus an eine private Betreibergruppe vermietet bzw. zur Verfügung gestellt. Die Sanierung erfolgte teilweise gemeinsam und der Umbau wurde von den Betreibern
vollzogen. Das Gebäude besteht aus einem Erd-, Dach-, und Untergeschoss. Die Erschließung erfolgt über den Vorgarten in eine Spielhalle im Erdgeschoss. Die zentrale Treppenanlage verbindet Das Erdgeschoss mit dem Dach- und Untergeschoss. Im Untergeschoss ist ein Spielhof angegliedert der zum Verbindungsglied zwischen alter und neuer Kita-Einrichtung wird.


