Projekt:
Kindertagesstätte belle maison
Ort:
Stuttgart Mitte
Ausführung:
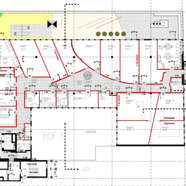
Nutzfläche im Gebäude: 900qm
Außenspielfläche: 300qm
Die Kita befindet sich im 7. OG der Schwabengarage. In den unteren Geschossen ist ein Studentenheim angesiedelt. Der komplette Gebäudekomplex wurde neu saniert. Die weiche Grundrissformen bietet den Kindern
ein kreatives Arbeiten und Spielen. Die Waschräume wurden mit Mehrfachfunktionen ausgestattet. Die Wascheinrichtungen sind teilweise auch als Spielmöbel nutzbar. Die vorgelagerte Terrasse bietet ist mit diversen Spielwerken ausgestattet und bietet den Kindern unterschiedlichste Spielmöglichkeiten anbieten.





